【一宮市】西の景色を取り込んだ家
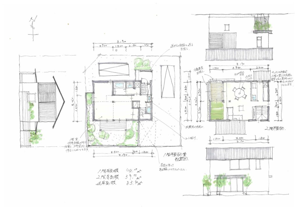
ちょっと自転車で走れば駅や大きなスーパーがあり、高速道路の入り口も近いという大変利便性の良い50坪の土地に建つ延べ面積25坪弱のお宅です。
ご夫婦とお子様1人 そして最近ネコさんが同居しだしました。
その猫さんのために新築1年も経たないのに改装をしました。(凄い!)
その話も最後にします。
性能は当たり前ですが耐震等級3 夏も冬もエアコン1台でOKです。
どうしても西の景色を取り込みたい!
事例紹介なのにスタートはお勉強から始めましょう。
下は都市計画図です。色がついているところは市街化区域といって、家や建物を建ててよい地域です。色がついていないところは市街化調整区域といって、原則家や建物を建ててはいけない地域です。

けど、赤で囲んだ地域にはなぜか家がたくさん建っていますね。
この理由は主に2つあり、昭和45年前から家が建っていた土地、または開発されていた土地の場合、もう一つは市の条例で許可した地域の場合です。
特に一宮市は市街化調整区域が市の3分の2なので、その条例を積極的に使っています。
まれにこのように家が建っている市街化区域もありますが、今後も家が建ちにくいのは確かなのです。ということは、視線が通り景色が良い土地なのです!

お庭から西を見た様子。遠く鈴鹿山脈が見えます。この景色が永く続く土地です。
今回の土地は、南ににも家がべったり、東にも家があります。北も道路を挟んで隣家でそれらの方向からは景色が取り込めません。
しかし、西は調整区域の土地なので開けている。それに遠く養老山脈や鈴鹿山脈の山々が見えるじゃないですか。この利点を生かさない手はない。けど、それが西向・・・
西向きの景色を取り込むために3カ所の窓を付けましたそれが下の写真です。

2階 自由の間から見える風景。景色が一番よく見える場所です。

1階居間からの風景。山並みが見えます。
この場所はちょっと行ったら便利だけどビルや家でごちゃごちゃとした便利な町です。その近くでこの景色を確保できる奇跡は利用しない手はありません。

キッチンからの風景。庭越しに、朝日を浴び景色が見えます
キッチンには朝日が入るようにしたい、と普通思うでしょうが、この窓は朝日に照らされた景色が見れるのです。
西日対策の窓
問題は夏です。ガラスは当然 熱線反射ガラスにしていますが、そんなものは追いつくはずがありません。そこで、景色を確保しながら西日を少しでもふせぐこんな窓をつけました。

日よけ格子戸を窓につけました。
けど予想していました。 たぶんこれでも足りない・・・
実はこの格子戸、ヨシズを挟み込めるようにしておいたのです。
お客様には、一度格子戸のみで過ごしていただき、暑かったら連絡してもらうようにお伝えしたところ、やはり夏の終わりころに連絡があり「ヨシズをつけてほしい」とのことで付けてきました。
これで相当暑さは和らいだようです。
南からの光をあきらめない
南にべったりと家がいある場合、南からの日光はあきらめるべきかと思われるのですが、次の条件を満たせば可能です。
1階から光を取り込むのなら、窓の設置する位置から隣家の外壁までの距離が9m程度 この条件はかなり難しい。
2階から光を取り込むのであれば、窓の設置する位置から隣家までの距離が4m程度
今回は6m弱の距離が取れますので(というかそのように設計したので)2階から光を取り込めます。

2階から光を取り込みます。ちなみに机といすは見学会用です。
今回は、すっきりと南にキャットウォーク(渡り廊下のようなもの)なしにしていますので、難点は窓掃除です。西に設けたすのこ上の床からちょっと道具を使って掃除することになります。
南のお庭は自分で景色をつくる
南に家がぺったりとあると、南の窓からはどうしても隣家の北側の外壁を見ることになります。
通常、北側は家づくりときあまり力を入れておらず、見たくないものです。特に足元は室外機や給湯器、ガスボンベ、物置、タイヤとかで残念な状態です。そこで「自分で景色をつくる」方法をとります。といっても大げさなことでなく、木フェンスと植栽を配置するだけです。

また、南の庭を一つの居場所にするために最終的にはこんな形になりました。
心地よい場所です。

お庭の現在の様子。下草も育ち良い感じです。
実は2階リビング案も提出していました
実は当初は2階リビング案も提出していました。
今を2階にあげたほうが、明るく広々とした空間がとれるのではないかと思ったからです。
ただ、地面との接点に違和感を感じることは否めませんでした。
1階居間案・2階居間案を提出し、話し合いの結果1階居間案に落ち着きました。
設計段階では、あらゆる可能性を探り考えて頂きたいと思い、このようなご提案もよくします。

弊社島田がつくった2階リビングのファーストプラン。2階リビングにも外の居場所があります。
構造計画前のプランです
2階大屋根の中に箱?
この家も、タマゴグミの設計の特徴であるスケルトンインフィルで計画さ入れていますので、内部がすっきりと大空間が取れています。
2階は将来3部屋に仕切れるようになっています。
しかし、今のところ家族みんなで休めて、衣服などが置ける大きなクローゼットが一体となった1部屋さえあればいいということで、その部屋のみ仕切りとしています。

ご夫婦のお仕事上、リモートワークも多いということで、「書斎」を作ってほしいという希望を頂いていました。ただ、書斎をデーンと作ってしまうと、限られた面積でどうしてもこの解放感が損なわれてしまいます。
せめて、部屋として必要になるあと10年弱はこのまま解放感を保ちたいと思い、考えたのが「箱」

屋根の構造にも使ったヒノキ合板を数枚使い、室内にブースをつくりました。
このスペース、なんか囲まれ感があってよくなるだろうなと思い設計したのですが、つくって椅子を持ち込んで座ってみたところ・・・居心地が良いのです。(回りくどい説明だ。)
現在、パソコンや書類などいろいろ持ち込まれて、小さなオフィスとなっています。ちょっと羨ましい空間です。
ちょっとした工夫で変わること
写真は、リビングから南の外を見たところです。

筋交いがちょっとうっとうしいですが、必要なところにはきちっと入れる。これは何よりも優先されるので、仕方がありません。吹き抜けの上に見えるのもブレースといって水平の力を受ける材料です。構造計算結果に則って取り付けています。
というのがちょっとした工夫じゃなくて、これからが本番です。
パット見たとき、窓が一枚のガラスのように見えませんか?(見えなくても、とりあえず頷いてください。次に進まないので)
これは人の感覚を使った手法です。
サッシの框の前に柱をわざと建てることで、そのように感じさせることができます。
ちょっとした工夫と気遣いで空間の質は変わります。
北面も気を使って
今回は北と西に道路がある角地です。
北面もしっかりと見えます。
まずは町並みに合ったデザインを心掛けています。急に真四角な異物が出てきたら残念な街並みになってしまうと思うのは私だけでしょうか?
それもありなんでしょうが、そのデザインをこのような街並みの中で成立させる建築士は私は2人程度しか知りません。

デザインしているときの私の頭の中のつぶやきを落書きしてみました。

こんなことを考えながら設計しています。
これらは、お客様の用途を加味しながら考えています。
お客様からは、車はぬれてもいいけど、出入りの時は屋根の下がいい。ご主人がバイクで通うのでその置き場を確保したい。
それらの要素をどう配置するか、そして街並みとどうかかわるかを考えながらデザインしています。
こんなすごい建築家もいます
建築家といわれる方はすごく少ないです。岐阜では数名程度です。その中でも雑誌に載るような建築家から突然私に電話がありました。
「お宅、どんな家を建てるつもり?」
急に言われて私の頭は「なんやこいつ!喧嘩売っとんのか!」
よく聞くと私が計画しているすぐ北側で、住宅を設計していたのです。設計段階の時は、以前の家が建っていて、それを加味しながら設計している。だから、家が変わると大きく設計を変えなくてはいけないということです。
私はその考えに感動して、高さから仕上げ材、屋根の向きや配置、すべてをお伝えしたことがあります。周りと調和することはデザインの基本なのです。単独で成り立つ建築ほどつまらないものはないと私は思います。
新しい家族のために
お渡ししてから1年以上経ったころにお電話を頂きました。
「新しい家族のために、ちょっと家を改良したいのですが。」
その新しい家族がこの方です。

ちょっとやんちゃな保護猫さんが、2階の吹き抜けから落ちないように、けどこの解放感を残しながらというリクエストで改装に取り掛かりました。

そしてできたのがこちら


一緒に楽しく暮らして行って漏れることを願っています。
お知らせ
今回の事例紹介はいかがですか?
家が本当に高くなってきています。そこで、「コスパの良い家のつくり方」という小冊子を書きました。無料でお送りしています。ぜひお申し込みください。




